中古一戸建て 宮崎市田代町

  • #中古一戸建て
  • #宮崎市田代町
  • 1/3
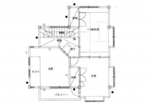
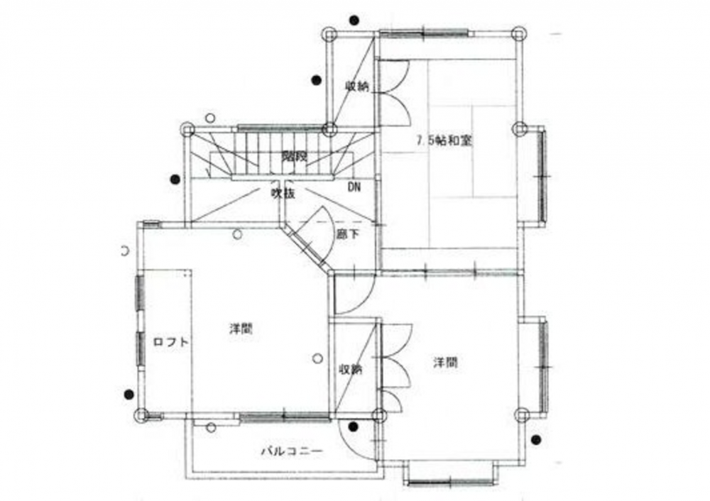
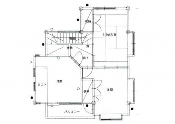
    宮崎市田代町、中古一戸建ての間取り画像です

    【間取り】

    宮崎市田代町、中古一戸建ての画像です
    宮崎市田代町、中古一戸建ての間取り画像です
    宮崎市田代町、中古一戸建ての画像です
    宮崎市田代町、中古一戸建ての画像です
    宮崎市田代町、中古一戸建ての間取り画像です
    宮崎市田代町、中古一戸建ての画像です
    所在地
    宮崎市田代町
    1,780万円
    33.84坪 4LDK

    \キッチン・トイレ・洗面台 新品交換済/
     駐車場2台確保の4LDK

     ・宮崎港小学校まで2400m(徒歩30分) 
     ・宮崎中学校まで1700m(徒歩22分)
     ・マルイチ一の宮店まで750m(徒歩10分)

    月々の
    支払例
    万円
    %

    ※宮崎銀行/借入金1,780万円、返済期間35年、金利0.950%変動型)の場合

    ※審査により金利は変わる可能性があります。

    物件概要

    交通

    バス停小戸町南 まで 徒歩4分

    接道状況
    西側 公道4m
    土地面積
    公簿 174.07㎡ (52.65坪)
    建物面積
    111.90㎡ (33.84坪)
    築年数
    1993年 (平成5) 7月
    築32年
    建ぺい率
    60%
    容積率
    200%
    土地権利
    所有権
    構造および階数
    木造 地上2階建
    小学校区
    宮崎港 ( 2400m )
    中学校区
    宮崎 ( 1700m )
    私道負担
    地目
    宅地
    現況
    引渡時期
    即時
    駐車場
    上水道
    公共
    下水道
    公共
    ガス
    プロパン個別
    都市計画
    市街化区域
    用途地域
    準工業
    設備・条件
    備考
    取引態様
    仲介
    周辺地図を確認する

    (弊社管理番号: 3001914)

    【更新日】2026年02月01日

    【次回更新日】2026年03月01日

    その他周辺物件

    最近チェックした物件

    会社紹介 Company

    この物件は32人の方が
    興味を持っています

    宮崎市の不動産情報

    HPを見たと言ってお気軽にお問い合わせください

    無料相談・お電話窓口

    0985-41-8677
    営業時間:9:30〜18:30