新築一戸建て 宮崎市大王町2号棟

  • #築10年以内
  • #駐車場2台以上
  • #50坪以上
  • #新築一戸建て
  • #宮崎市大王町
  • 1/3
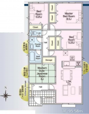
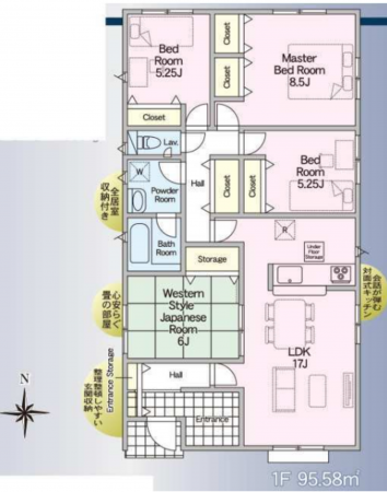
    宮崎市大王町、新築一戸建ての間取り画像です

    【間取り】

    宮崎市大王町、新築一戸建ての画像です
    宮崎市大王町、新築一戸建ての間取り画像です
    宮崎市大王町、新築一戸建ての画像です
    宮崎市大王町、新築一戸建ての画像です
    宮崎市大王町、新築一戸建ての間取り画像です
    宮崎市大王町、新築一戸建ての画像です
    所在地
    宮崎市大王町2号棟
    2,988万円
    28.91坪 4LDK

    \2026年2月築 ୨୧ 設備充実の平屋4LDK/
    オール電化・浴室乾燥機付きで雨の日も安心☂
    駐車場3台分あり。LDK15帖超えでゆったり⚘

     ・潮見小学校まで400m(徒歩5分) 
     ・宮崎中学校まで500m(徒歩7分)
     ・ショッピングのだ出来島店まで650m(徒歩9分)

    月々の
    支払例
    万円
    %

    ※宮崎銀行/借入金2,988万円、返済期間35年、金利0.950%変動型)の場合

    ※審査により金利は変わる可能性があります。

    物件概要

    交通

    日豊線 宮崎駅 バス16分乗車 バス停昭和町東 まで 徒歩3分

    接道状況
    南側 公道4.4m 間口約9.2m
    土地面積
    実測 216.24㎡ (65.41坪)
    建物面積
    95.58㎡ (28.91坪)
    築年数
    2026年 (令和8) 2月 完成予定
    建ぺい率
    60%
    容積率
    178%
    土地権利
    所有権
    構造および階数
    木造 地上1階建
    小学校区
    潮見 ( 400m )
    中学校区
    宮崎 ( 500m )
    私道負担
    地目
    宅地
    現況
    引渡時期
    期日指定
    駐車場
    上水道
    下水道
    ガス
    都市計画
    市街化区域
    用途地域
    2種中高
    設備・条件
    備考
    取引態様
    仲介
    周辺地図を確認する

    (弊社管理番号: 3001925)

    【更新日】2026年02月10日

    【次回更新日】2026年03月10日

    その他周辺物件

    最近チェックした物件

    会社紹介 Company

    この物件は24人の方が
    興味を持っています

    宮崎市の不動産情報

    HPを見たと言ってお気軽にお問い合わせください

    無料相談・お電話窓口

    0985-41-8677
    営業時間:9:30〜18:30