中古一戸建て 宮崎市青島2

  • #中古一戸建て
  • #宮崎市青島
  • 1/4
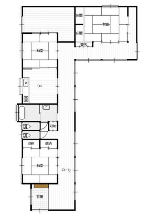
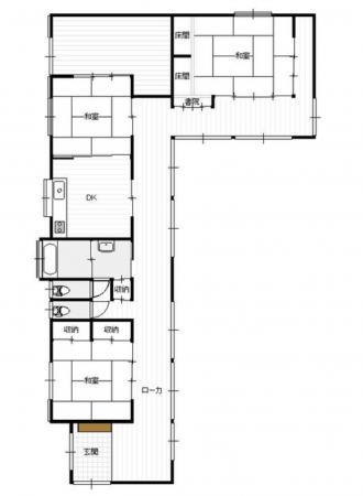
    宮崎市青島、中古一戸建ての間取り画像です

    【間取り】

    宮崎市青島、中古一戸建ての画像です
    宮崎市青島、中古一戸建ての間取り画像です
    宮崎市青島、中古一戸建ての画像です
    宮崎市青島、中古一戸建ての画像です
    宮崎市青島、中古一戸建ての画像です
    宮崎市青島、中古一戸建ての間取り画像です
    宮崎市青島、中古一戸建ての画像です
    宮崎市青島、中古一戸建ての画像です
    所在地
    宮崎市青島2
    4,980万円
    48.49坪 4DK

    人気のリゾート地『青島』の中古物件!
     海まで2㎞以内と好立地です♪

     ・青島保育園まで徒歩8分(598m)
     ・青島小学校まで徒歩23分(1789m)
     ・青島中学校まで徒歩26分(2080m)

    月々の
    支払例
    万円
    %

    ※宮崎銀行/借入金4,980万円、返済期間35年、金利0.950%変動型)の場合

    ※審査により金利は変わる可能性があります。

    物件概要

    交通

    日南線 青島駅 まで 徒歩7分

    接道状況
    土地面積
    574.56㎡ (173.80坪)
    建物面積
    160.31㎡ (48.49坪)
    築年数
    1988年 (昭和63) 11月
    築37年
    建ぺい率
    80%
    容積率
    300%
    土地権利
    構造および階数
    木造
    小学校区
    ( 1789m )
    中学校区
    ( 2080m )
    私道負担
    地目
    現況
    引渡時期
    駐車場
    上水道
    下水道
    ガス
    都市計画
    用途地域
    近隣商業
    設備・条件
    備考
    取引態様
    仲介
    周辺地図を確認する

    (弊社管理番号: 3001991)

    【更新日】2026年01月20日

    【次回更新日】2026年05月20日

    その他周辺物件

    最近チェックした物件

    会社紹介 Company

    この物件は21人の方が
    興味を持っています

    宮崎市の不動産情報

    HPを見たと言ってお気軽にお問い合わせください

    無料相談・お電話窓口

    0985-41-8677
    営業時間:9:30〜18:30