マンション サーパス宮崎セントマークス

  • #中古マンション
  • #宮崎市清水
  • 1/6
    宮崎市清水、マンションの間取り画像です

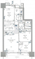
    【間取り】

    宮崎市清水、マンションの画像です
    宮崎市清水、マンションの間取り画像です
    宮崎市清水、マンションの画像です
    宮崎市清水、マンションの画像です
    宮崎市清水、マンションの画像です
    宮崎市清水、マンションの画像です
    宮崎市清水、マンションの画像です
    宮崎市清水、マンションの間取り画像です
    宮崎市清水、マンションの画像です
    宮崎市清水、マンションの画像です
    宮崎市清水、マンションの画像です
    宮崎市清水、マンションの画像です
    所在地
    宮崎市清水1丁目
    3,590万円
    65.77m² 3LDK

    \築3年のペット可3LDKマンション/
    中心市街地にも近く好立地♪


     ・西池小学校まで820m(徒歩11分) 
     ・宮崎西中学校まで680m(徒歩9分)
     ・マックスバリュ橘通西店まで320m(徒歩5分)
     ・宮崎県立宮崎病院まで590m(徒歩8分)

    月々の
    支払例
    万円
    %

    ※宮崎銀行/借入金3,590万円、返済期間35年、金利0.950%変動型)の場合

    ※審査により金利は変わる可能性があります。

    物件概要

    交通

    日豊線 宮崎駅 まで 徒歩15分

    専有面積
    壁芯 65.77㎡
    バルコニー面積
    12.06㎡
    バルコニー方向
    所在階/階数
    4階/14階
    築年数
    2023年 (令和5) 1月
    築3年
    建ぺい率
    容積率
    土地権利
    所有権
    構造および階数
    RC(鉄筋コンクリート) 造 地上14階建
    総戸数
    小学校区
    西池 ( 820m )
    中学校区
    宮崎西 ( 680m )
    地目
    現況
    居住中
    引渡時期
    相談
    駐車場
    空有
    駐車場月額
    3,000円/月
    管理形態
    全部委託
    管理方式
    管理人日勤
    管理会社
    管理費
    8,300円
    修繕積立費
    5,600円
    上水道
    下水道
    ガス
    都市計画
    用途地域
    商業
    設備・条件
    備考
    取引態様
    仲介
    周辺地図を確認する

    (弊社管理番号: 5000540)

    【更新日】2026年04月22日

    【次回更新日】2026年05月22日

    その他周辺物件

    最近チェックした物件

    会社紹介 Company

    この物件は53人の方が
    興味を持っています

    宮崎市の不動産情報

    HPを見たと言ってお気軽にお問い合わせください

    無料相談・お電話窓口

    0985-41-8677
    営業時間:9:30〜18:30